日期:
來源:購房網收集編輯:admin
龍潤豐錦價格12000元/平米,戶型為100平-178平。房子不單單只是人們單純的生活住所,也是一種對生活理念的表達方式。 擇一處好房,就是選擇一種理想的生活方式和良好的居住氛圍。龍潤豐錦價格12000元/平米
享受與放松、風光與景致,私密與溝通、社交與娛樂,龍潤豐錦,多戶型的產品設計,給業主全新的生活體驗。龍潤豐錦容積率2.00,停車場數973個,醫院華大醫院、成都市華大醫院。
我們總在說建筑是有生命的,有溫度的,那是因為有人存在與生活的印跡。龍潤豐錦,多重居住體驗,躍升質感人居。龍潤豐錦樓座信息樓棟總數: 15棟,在售,戶型有2室-4室

A1c(3室2廳,155平,南北)

B1b(4室2廳,178平,南北)

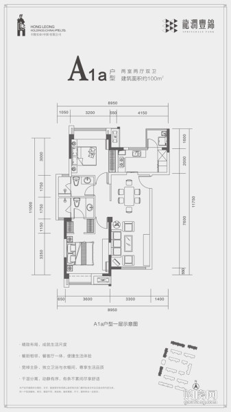
A1a(2室2廳,100平,南北)
小區的物業服務費主要是公共性服務收費,包括公共設備、設施的日常運行、維修和保養等費用。龍潤豐錦物業費2.98元/㎡·月,綠化率35%,裝修毛坯。